国标Y型过滤器GL41W-16C/P/R
我们坚持以客户需求为导向,以技术创新为动力,为您提供从产品选型到技术咨询的全方位服务,助力企业提升蒸汽系统能效,创造更大价值。
详情介绍
产品概述Products overview
Y型过滤器是输送介质的管道系统不可缺少的一种过滤装置,Y型过滤器通常安装在减压阀、泄压阀、定水位阀或其它设备的进口端,用来清除介质中的杂质,以保护阀门及设备的正常使用。Y型过滤器具有结构先进,阻力小,排污方便等特点。Y 型过滤器适用介质可为水、油、气。一般通水网为18~30目,通气网为10~100目,通油网为100~480目。
篮式过滤器主要由接管、主管、滤蓝、法兰、法兰盖及紧固件等组成。当液体通过主管进入滤蓝后 固体杂质颗粒被阻挡在滤蓝内,而洁净的流体通过滤蓝、由过滤器出口排出。
Y type filter is the medium of pipeline system is indispensable to a filtering device,Y type strainer is usually installed in a reducing valve,relief valve and the inlet water valve or other equipment,used to remove the impurity in the medium,in order to protect the valves and equipment normal use.Y type filter has the advanced structure,small resistance and easy drainage,etc.Y type filter suitable medium for water,oil and gas.Generally water network are 18~30 mu,ventilation network are 10~100 mesh,oil network 100~480 mesh.Basket strainer is mainly。
Composed of takeover,director,filter blue,flange,flange cover,and fasteners,etc. When the liquid by supervisorInto the filter can solid impurity particles will be blocked after blue within the blue filter,and clean fluid through the blue filter,the filter outlet.
基本参数
介质温度:300(℃)
工作压差:2KG
材质:不锈钢
产品别名:Y 型过滤器
适用范围:液体过滤
连接形式:法兰
类型:直角式
流动方向:单向
适用介质:水
压力环境:常压
Basic parameters
Medium temperature:300℃)
Working pressure difference:2kg Material:stainless steel
Product alias:Y type filter
Scope of application:liquid filtration Connection:flange
Type:the right Angle
Flow direction:one way
Applicable medium:water
Pressure:the atmospheric pressure
产品执行标准Production enforce standard
产品规范Product Specification | 设计规范Design Spec | 结构长度Face to Face | 连接法兰 Flange End | 试验与检验 Test &Check | 产品标识 Marking | 供货规范 Supply |
GB/T 21637 | GB/T12221 | JB/T79 | JB/T 9092 | GB/T12220 | JB/T 7928 |
产品性能规范Chief property and specification
型号 Type | 连接方式Conjunction method | 公称压力 PN(MPa) | 耐压试验压力(MPa) | 工作压力(MPa) | 壳体材料 Material | 过滤网材料 Strainer material | 网总面积 |
SY4P-10 | 法兰Flange | 1 | 1.1 | 1 | 灰铸铁Gast ferrosteel | 不锈钢Stainless steel | 3~4DN |
SY4P-16 | 法兰Flange | 1.6 | 1.76 | 1.6 | 球墨铸铁Ductile cast iron | ||
SY4P-25 | 法兰Flange | 2.5 | 2.75 | 2.5 | 碳钢Carbon steel |
主要零件材料Material for main parts
零件名称Parts Name | 零部件材料Part Material | |||||
阀体/阀盖Body/Bonnet | 25 | WCB | CF8 | CF8M | CF3 | CF3M |
网架Dis/stem | 25 | 35 | 1Cr18Ni9Ti | 1Cr18Ni12Mo2Ti | 00Cr18Ni10 | 00Cr17Ni14Mo2 |
滤网Strainet | 1Cr18Ni9Ti | 1Cr18Ni9Ti | 00Cr18Ni10 | |||
垫片Gasket | 18-8柔性石墨18-8/Flexible Graphite | |||||
螺栓Bolt | 35 | 1Cr17Ni2 | 1Cr18Ni9Ti | |||
适用温度Suitable temp | -29~+425℃ | -40~+200℃ | -40~+200℃ | |||
适用介质Suitable medium | 水、油品、蒸汽 | 硝酸类Nitric Acid | 醋酸类Acetic Acid | |||
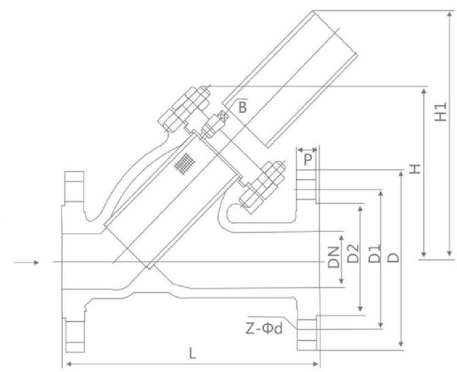
主要外形和连接尺寸Main external and connection dimension
公称压力 PN(MPa) | 公称通径 DN(mm) | 尺寸 ( mm ) | ||||||
L | D | D1 | D2 | b | Z-Φd | H | ||
1.6MPa | 15 | 130 | 95 | 65 | 45 | 14-2 | 4-φ14 | 60 |
20 | 145 | 105 | 75 | 55 | 14-2 | 4-Φ14 | 70 | |
25 | 150 | 115 | 85 | 65 | 14-2 | 4-φ14 | 70 | |
32 | 180 | 135 | 100 | 78 | 16-2 | 4-φ18 | 75 | |
40 | 200 | 145 | 110 | 85 | 16-3 | 4-φ18 | 90 | |
50 | 220 | 160 | 125 | 100 | 16-3 | 4-Φ18 | 105 | |
65 | 250 | 180 | 145 | 120 | 18-3 | 4-φ18 | 150 | |
80 | 280 | 195 | 160 | 135 | 20-3 | 8-φ18 | 175 | |
100 | 300 | 215 | 180 | 155 | 20-3 | 8-Φ18 | 200 | |
125 | 350 | 245 | 210 | 185 | 22-3 | 8-φ18 | 205 | |
150 | 380 | 280 | 240 | 210 | 24-3 | 8-φ23 | 260 | |
200 | 480 | 335 | 295 | 265 | 26-3 | 12-φ23 | 300 | |
250 | 550 | 405 | 355 | 320 | 30-3 | 12-φ25 | 380 | |
300 | 610 | 460 | 410 | 375 | 30-4 | 12-φ25 | 410 | |