法兰连接波纹管闸阀
我们坚持以客户需求为导向,以技术创新为动力,为您提供从产品选型到技术咨询的全方位服务,助力企业提升蒸汽系统能效,创造更大价值。
详情介绍
法兰连接波纹管闸阀 Class150~1500
Flange connection bellows gate valve Class
结构示意图Structural diagram

应用规范Application specification
1.设计制造按JB/T11150、BS1414、MSS-SP-117和ASME B 16.34
2.结构长度按ANSI B 16.10
3.对接焊端尺寸按ASME B16.25
4.阀门的检验和试验按API598
5.结构特征:BB 、OS&Y或WB、OS&Y
1.Design and manufacturing as per JB/T11150、BS1414、MSS-SP-117 and ASME B 16.34
2.Face-to-face dimension as per ANSI B16.10
3.Butt welding end size as per ASME B 16.25
4.Valve inspection and testing as per API 598
5.Structural features:BB 、OS&Y or WB 、OS&Y
性能规范Performance specification

主要外形尺寸Main external dimension
Class | NPS | L | D | D2 | D1 | T | N-φ | H | D0 |
150Lb | 2 1/2 | 190 | 178 | 139.9 | 105 | 105 | 4-19 | 802 | 200 |
3 | 203 | 190 | 152.5 | 127 | 127 | 4-19 | 804 | 250 | |
4 | 229 | 229 | 190.5 | 157 | 157 | 8-19 | 922 | 250 | |
5 | 254 | 254 | 216 | 186 | 186 | 8-22 | 1168 | 355 | |
6 | 276 | 279 | 241.5 | 216 | 216 | 8-22 | 1342 | 355 | |
8 | 292 | 343 | 298.5 | 270 | 270 | 8-22 | 1896 | 450 | |
10 | 330 | 406 | 362 | 324 | 324 | 12-25 | 2190 | 450 | |
12 | 356 | 483 | 432 | 381 | 381 | 12-29 | 2406 | 500 | |
14 | 381 | 533 | 476.5 | 413 | 413 | 16-29 | 3005 | 600 | |
16 | 406 | 597 | 532.5 | 470 | 470 | 16-29 | 3335 | 600 |
Class | NPS | L | D | D1 | D2 | d | H | D0 |
300Lb | 2 1/2 | 241 | 92 | 72 | 67 | 65 | 848 | 220 |
3 | 282 | 106 | 84 | 80 | 78 | 873 | 250 | |
4 | 305 | 122 | 107 | 104 | 100 | 1013 | 320 | |
5 | 381 | 157 | 135 | 130 | 125 | 1235 | 320 | |
6 | 403 | 184 | 163 | 159 | 150 | 1486 | 400 | |
8 | 419 | 238 | 211 | 207 | 200 | 1908 | 450 | |
10 | 457 | 296 | 262 | 258 | 300 | 2251 | 450 | |
12 | 502 | 345 | 310 | 306 | 330 | 2514 | 600 | |
14 | 762 | 378 | 344 | 340 | 332 | 3005 | 600 | |
16 | 838 | 434 | 391 | 384 | 308 | 3335 | 850 | |
20 | L | 544 | 486 | 482 | 478 | 3778 | 850 | |
600Lb | 2 1/2 | 330 | 92 | 72 | 67 | 65 | 924 | 220 |
3 | 356 | 106 | 84 | 80 | 78 | 984 | 250 | |
4 | 432 | 122 | 107 | 104 | 100 | 1010 | 320 | |
5 | 508 | 157 | 135 | 130 | 125 | 1324 | 320 | |
6 | 559 | 184 | 163 | 159 | 150 | 1511 | 400 | |
8 | 660 | 238 | 211 | 207 | 200 | 2016 | 450 | |
10 | 787 | 296 | 262 | 258 | 300 | 2246 | 450 | |
12 | 838 | 345 | 310 | 306 | 330 | 2608 | 600 | |
14 | 889 | 378 | 344 | 340 | 332 | 3156 | 600 | |
16 | 991 | 434 | 391 | 384 | 308 | 3450 | 850 | |
20 | 1194 | 550 | 486 | 482 | 478 | 4050 | 850 | |
1500Lb | 2 1/2 | 419 | 100 | 58 | 54 | 52 | 1085 | 400 |
3 | 470 | 120 | 72 | 67 | 65 | 1382 | 500 | |
4 | 546 | 140 | 92 | 87 | 85 | 1543 | 500 |
法兰连接波纹管闸阀 Class150~1500
Flange connection bellows gate valve Class
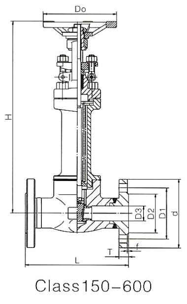
结构示意图Structural diagram


应用规范Application specification
1.设计制造按JB/T11150、BS1414、MSS-SP-117和ASME B 16.34
2.结构长度按ANSI B16.10
3.法兰连接尺寸按ASME B16.5
4.阀门的检验和试验按API 598
1.Design and manufacturing as per JB/T11150、BS 1414、 MSS-SP-117、ASME B 16.34
2.Face-to-face dimension as per ANSI B16.10
3.Flange connection size as per ASME B16.5
4.Valve inspection and testing as per API 598
性能规范Performance specification

主要外形尺寸Main external dimension
Class | NPS | L | D | D1 | D2 | D3 | T | H | n-φ | D0 |
150Lb | 1/2 | 108 | 89 | 60.5 | 35 | 13 | 12 | 252 | 4-15 | 130 |
3/4 | 117 | 98 | 70 | 43 | 19 | 12 | 254 | 4-15 | 130 | |
1 | 127 | 108 | 79.5 | 51 | 25 | 12 | 279 | 4-15 | 130 | |
1 1/4 | 140 | 117 | 89 | 64 | 32 | 13 | 386 | 4-15 | 180 | |
1 1/2 | 165 | 127 | 98.5 | 73 | 38 | 15 | 386 | 4-15 | 180 | |
2 | 178 | 152 | 120.5 | 92 | 51 | 16 | 443 | 4-19 | 200 | |
300Lb | 1/2 | 140 | 95 | 66.7 | 35 | 13 | 15 | 252 | 4-16 | 130 |
3/4 | 152 | 120 | 82.5 | 43 | 19 | 16 | 254 | 4-19 | 130 | |
1 | 165 | 125 | 88.9 | 51 | 25 | 18 | 279 | 4-19 | 130 | |
1 1/4 | 178 | 135 | 98.4 | 64 | 32 | 19 | 386 | 4-19 | 180 | |
1 1/2 | 190 | 155 | 114.3 | 73 | 38 | 21 | 386 | 4-22 | 180 | |
2 | 216 | 165 | 127 | 92 | 51 | 23 | 443 | 8-19 | 200 | |
600Lb | 1/2 | 165 | 95 | 66.7 | 35 | 13 | 15 | 321 | 4-16 | 130 |
3/4 | 190 | 120 | 82.5 | 43 | 19 | 16 | 323 | 4-19 | 130 | |
1 | 216 | 125 | 88.9 | 51 | 25 | 18 | 364 | 4-19 | 130 | |
1 1/4 | 229 | 135 | 98.4 | 64 | 32 | 21 | 507 | 4-19 | 180 | |
1 1/2 | 241 | 155 | 114.3 | 73 | 38 | 23 | 507 | 4-22 | 180 | |
2 | 292 | 165 | 127 | 92 | 51 | 26 | 595 | 8-19 | 200 | |
1500Lb | 1/2 | 216 | 120 | 82.6 | 35 | 13 | 29 | 485 | 4-22 | 220 |
3/4 | 229 | 130 | 88.9 | 43 | 19 | 32 | 485 | 4-22 | 220 | |
1 | 254 | 150 | 101.6 | 51 | 25 | 35 | 504 | 4-26 | 220 | |
1 1/4 | 279 | 160 | 111 | 64 | 32 | 35 | 837 | 4-26 | 320 | |
1 1/2 | 305 | 180 | 123.8 | 73 | 38 | 38.5 | 837 | 4-30 | 320 | |
2 | 368 | 215 | 165 | 92 | 50 | 45 | 863 | 8-26 | 320 |