美标法兰浮动球阀Q41F-150Lb
我们坚持以客户需求为导向,以技术创新为动力,为您提供从产品选型到技术咨询的全方位服务,助力企业提升蒸汽系统能效,创造更大价值。
详情介绍
美标法兰浮动球阀Apiflanged floating ball valve
设计Design
球阀为提供最大的操作寿命和可靠性而设计和生产的,所有的球阀都符合美国石油学会标准API608和API6D的要求和英标BS 5351与美国机械工程师协会标准ASME B16.34一致。阀门由完整的阀体、阀盖和内件组成。
ball valve are designed and manufactured to provide maximum service life and dependability.All ball valves are full ported and meet the design requirements of API Standard API 600&API 6D,British Standard BS 5351 and generally conform to American Society of Mechanical Engineers Standard ASMEB16.34.Valves are available in a complete range of body/bonnet materials and trims.
材料范围Rang of Materials
阀体/阀盖的材料包括碳含量的九个等级,低合金和不锈钢,在特殊的适用中,他们可用合金和不锈钢的其他等级。有许多的内件供不同的环境下使用,填料和垫片的选择也为各种环境所具备。
Standard body/bonnet materials include nine grades of carbon,low alloy and stainless steels.For special apolications they can be supplied in other gardes of alloy and stainless steel.There's a full range of trim materials to match any service.Optional packing and gasket materials are available for a full range of service conditions.
阀门的商标可以按照客户的要求修改Available Modifications For Trademark Cast Steel Valves
*内件变化 Trim changes
*连接方式改变 End connection Modifications
*填料和垫片的改变 Packing and Gasket Changes
*固定式操作 Operator Mounting
*加长手柄 Handwheel Extensions
*压力调节 Pressure Equalizing
*静电弹簧/防火标准 AS or FD
*客户的特殊铸造要求 Customer specified Coatings
*焊接端的内孔改变 Weld End Bore Changes
*氧/氯气的清洁及包装 Oxygen&Chlorine Cleaning &Packaging
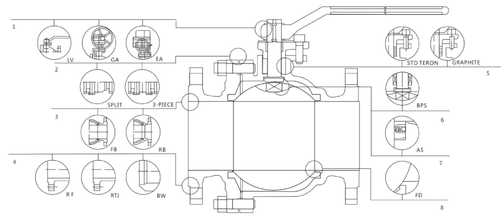
1、 操作Operating
用手柄更容易操作,同样也可以用蜗轮、电动、气动、液动,他们用于更艰难的环境下。
Extended lever for easy operation. Also available with gearing,motor actuator,pneumatic or hydraulic actuators for more diffcult services.
2、阀体-阀盖BODY&BONNET
不采3片式12"以下的阀体、阀盖,用这种结构更方便于外部零件的修理和替换。
Split or3-piece,split body&bonnet for 12"&Small Disassembles easily for repair or replacement of intermal components.
3、通径BORE
全通径和缩径全通径适用于大的流量介质,也可请扫管路。
Full and reduced full diameters are suitable for large flow media, also please sweep the pipe.
4、连接方式End Connections
可采用法兰连接、环连接、对接焊管件。
Flange connection,ring connection and butt welding fitting can be used.
5、填料Packing
标准填料一般采用特氟龙材质,保证填料在高循环的压缩和严峻的操作环境下,石墨填料适合高温条件下使用。
STD Packing Multiple V-TEFLON packing,combined with live loading,maintains packing compression under high-cycle and severe service applications.Graphite packing use situatior for high-temperature.
6、阀杆防脱BPS
防止阀杆脱落,一个压力安全的阀杆设计应该是有防脱结构,在正常压力下不易飞出。
To prevent stem shedding,a pressure-safe stem design should be designed with atrip-proof design that does not fly out under nomal pressure.
7、静电弹簧AS
这种连接总是在球体和阀杆/阀体之间运动卸载最终在操作时静止。
This connection always moves between the ball and stem/body and the unloading eventually stops during operation.
8、防火标志FD
根据API607或BS6755来设计,确保他们在发生火灾时的操作适用性, 其次金属密封面当主要的密封面被火破坏时就像是一层隔离墙,符合API607的阀门带石墨填料和垫片。
Fire Durable.Designed according to API607 or BS6755 to ensure their operability in case of fire,the metal sealing surface ACTS as a barrier when the main sealing surface is damaged by fire,and API607 compliant valves with graphite packing and gaskets.
Q41F-150Lb

应用标准 Applicable standards
球阀符合API 608/API6D标准 BALL VALVES,API608/API6D
球阀符合ISO10434/ISO14313标准 BALL VALVES,ISO 10434/ISO14313
防火标志采用API 607标准 FRE DURABLE,API607
防静电采用API 608标准 ANTI STATIC,API608
符合ASME B16.34标准 VALVES,ASME B16.34
结构长度符合ASME B16.10标准 FACE TO FACE,ASME B16.10
法兰尺寸符合ASME B16.5标准 END FLANGES,ASME B16.5
对接焊符合ASME B16.25标准 BUTTWELDING ENDS,ASMB16.25
试验与检验符合API 598/API6D标准 INSPECTION AND TEST,API 598/API6D
设计描述Design description:
全通径设计 FULLPORT DESIGN
螺栓连接 BB,BOLTED BONNET,SPLIT BODY
浮动结构 FLOATING BALL TYPE
防脱阀杆 BLOW-OUT PROOF STEM
防火设计 FIRE DURABLE CONSTRUCTION
静电装置 ANTI STATIC DEVICE
切断装置 STOPPER DEVICE
ISO5211固定盘 ISO5211 MOUNTING PAD
法兰/焊接端 FLANGED OR BUTTWELDING ENDS
蜗轮操作 AVAILABLE WTH BG OPERATOR
各部件材质Materials of parts
序号NO | 零件名称Part Name | ASTM材质ASTM Material | ||
碳钢Carbon Steel | CF8M | CF8 | ||
1 | 阀体Body | A216-WCB | A351-CF8M | CF8 |
2 | 阀盖Bonnet | A216-WCB | A351-CF8M | CF8 |
3 | 球Ball | A182-F3041) | A182-F316 | F304 |
4 | 阀杆Stem | A276-304 | A276-316 | F304 |
5 | 阀座Seat seat | R.PTFE | ||
6 | 垫片Gasket | 石墨+3042)Graphite+3042) | PTFE | PTFE |
7 | 阀盖螺栓Valve cover bolt | A193-B7 | A193-B8M | A193-B8M |
8 | 阀盖螺母Valve cover nut | A194-2H | A194-8M | A194-8M |
9 | 填料Packing | PTEE PTFE | ||
10 | 填料压板Packing press plate | A216-WCB | CF8 | CF8 |
11 | 填料螺栓Packing bolt | A193-B7 | A193-B8M | A193-B8M |
12 | 定位片Positioning sheet | 碳钢Carbon Steel | F304 | F304 |
13 | 手柄Handle | 碳钢Carbon Steel | ||
注释Note:
1、A105+ENP可选择的 A105+ENP optional
2、缠绕石墨垫片 Spiral wound construction.
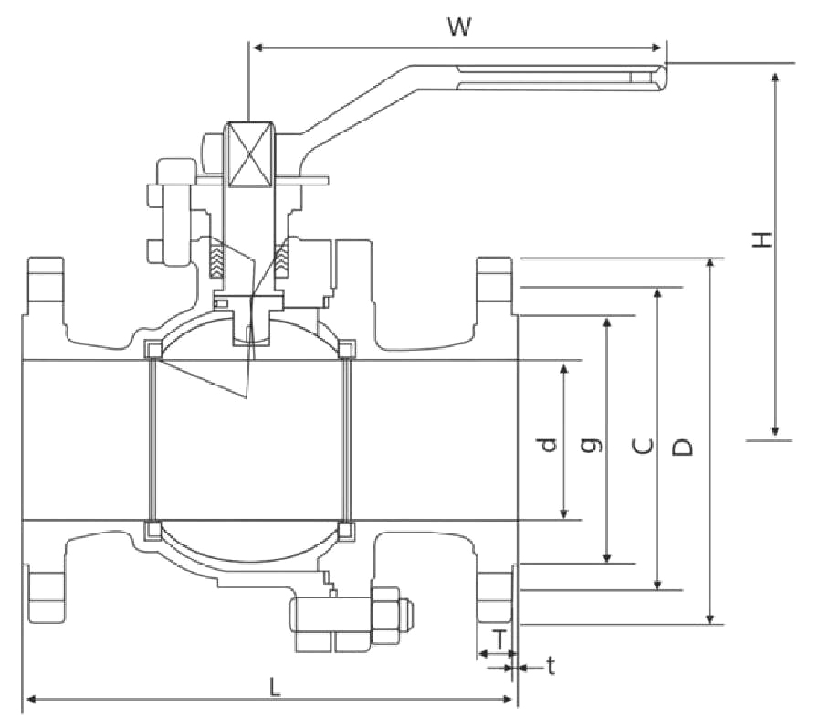
主要连接尺寸Main connection dimensions
公称压力Nominalpressure | Size | Dimensions(mm) | |||||||||
DN | d | L | D | C | g | T | t | H | W | n-Φ | |
class 150Lb | 1/2" | 15 | 108 | 89 | 60.5 | 35 | 12.7 | 1.6 | 87.5 | 142 | 4-15 |
3/4" | 20 | 117 | 98 | 70 | 43 | 12.7 | 1.6 | 87.5 | 142 | 4-15 | |
1" | 25 | 127 | 108 | 79.5 | 51 | 13 | 1.6 | 91.5 | 142 | 4-15 | |
1 1/4" | 32 | 140 | 117 | 89 | 64 | 14.5 | 1.6 | 107 | 190 | 4-15 | |
1 1/2" | 40 | 165 | 127 | 98.5 | 73 | 15 | 1.6 | 128 | 200 | 4-15 | |
2" | 50 | 178 | 152 | 120.5 | 92 | 16 | 1.6 | 136 | 200 | 4-19 | |
2 1/2" | 65 | 190 | 178 | 139.5 | 105 | 18 | 1.6 | 158 | 300 | 4-19 | |
3" | 80 | 203 | 190 | 152.5 | 127 | 19 | 1.6 | 196 | 350 | 4-19 | |
4" | 100 | 229 | 229 | 190.5 | 157 | 24 | 1.6 | 212 | 700 | 4-19 | |
5" | 125 | 256 | 254 | 215.9 | 186 | 24 | 1.6 | 252 | 1100 | 8-22 | |
6" | 150 | 394 | 279 | 241.5 | 261 | 26 | 1.6 | 272 | 1100 | 8-22 | |
8" | 200 | 457 | 343 | 298.5 | 270 | 29 | 1.6 | 342 | 1500 | 8-22 | |
10" | 250 | 533 | 406 | 362 | 324 | 30 | 1.6 | 345 | 1500 | 12-25 | |
12" | 305 | 610 | 483 | 432 | 381 | 32 | 1.6 | 385 | 12-25 | ||
14" | 337 | 686 | 535 | 476 | 413 | 35 | 1.6 | 430 | 12-29 | ||
16" | 387 | 762 | 597 | 540 | 470 | 37 | 1.6 | 470 | 16-29 | ||
18" | 489 | 914 | 698 | 635 | 582 | 43 | 1.6 | 590 | 16-32 | ||
主要连接尺寸Main connection dimensions
公称压力Nominalpressure | Size | Dimensions(mm) | |||||||||
DN | d | L | D | C | g | T | t | H | W | n-Φ | |
class 300Lb | 1/2" | 15 | 140 | 95 | 66.5 | 35 | 15 | 1.6 | 87.5 | 142 | 4-15 |
3/4" | 20 | 152 | 117 | 82.5 | 43 | 16 | 1.6 | 87.5 | 142 | 4-15 | |
1" | 25 | 165 | 124 | 89 | 51 | 18 | 1.6 | 91.5 | 142 | 4-19 | |
1 1/4" | 32 | 178 | 133 | 98.5 | 64 | 19 | 1.6 | 107 | 190 | 4-19 | |
1 1/2" | 40 | 190 | 156 | 114.5 | 73 | 21 | 1.6 | 128 | 200 | 4-22 | |
2" | 50 | 216 | 165 | 127 | 92 | 23 | 1.6 | 136 | 200 | 8-19 | |
2 1/2" | 65 | 241 | 190 | 149 | 105 | 26 | 1.6 | 158 | 300 | 8-22 | |
3" | 80 | 283 | 210 | 168.5 | 127 | 29 | 1.6 | 202 | 350 | 8-22 | |
4" | 100 | 305 | 254 | 200 | 157 | 32 | 1.6 | 218 | 700 | 8-22 | |
5" | 125 | 381 | 279 | 235 | 186 | 35 | 1.6 | 252 | 1100 | 8-22 | |
6" | 150 | 403 | 318 | 270 | 216 | 37 | 1.6 | 272 | 1100 | 12-22 | |
8" | 200 | 502 | 381 | 330 | 270 | 41 | 1.6 | 342 | 1500 | 12-25 | |
10" | 250 | 568 | 444 | 387.5 | 324 | 48 | 1.6 | 345 | 1500 | 16-29 | |
class 600Lb | 1/2" | 15 | 165 | 95 | 66.5 | 35 | 15 | 6.4 | 59 | 160 | 4-16 |
3/4" | 20 | 190 | 117 | 82.5 | 43 | 16 | 6.4 | 63 | 160 | 4-19 | |
1" | 25 | 216 | 124 | 89 | 51 | 18 | 6.4 | 75 | 230 | 4-19 | |
1 1/4" | 32 | 229 | 133 | 98.5 | 64 | 21 | 6.4 | 85 | 300 | 4-19 | |
1 1/2" | 40 | 241 | 156 | 114.5 | 73 | 22.3 | 6.4 | 95 | 400 | 4-22 | |
2" | 50 | 292 | 165 | 127 | 92 | 25.4 | 6.4 | 107 | 700 | 8-19 | |
4" | 100 | 432 | 273 | 216 | 157.2 | 38 | 6.4 | 178 | 1100 | 8-25 | |
5" | 125 | 491 | 330 | 267 | 186 | 44.5 | 6.4 | 225 | 1100 | 8-29 | |
6" | 152 | 559 | 356 | 282 | 216 | 47.2 | 6.4 | 250 | 1500 | 12-29 | |
8" | 203 | 660 | 419 | 349 | 282 | 55.7 | 6.4 | 294 | 1500 | 12-32 | |